VENDIDO UF 17.500 - Casa, Habitacional
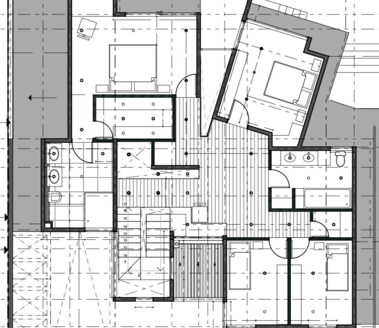
Parque residencial Quinta Junge, 4 dormitorios, 5 baños, 320 m2 construidos, Hall Acceso, 2 niveles mas subterráneo, Terraza con Quincho y 3 Estacionamientos.
320 m2 4 dormitorios 5 baños 3 Estacionamientos
Ubicado en un sector de gran conectividad, cercano a Colegios, Supermercados y Universidades.
Carácterísticas
4 dormitorios (Principal en suite con wlaking closet) – 5 Baños – Cocina Equipada – Hall de Acceso – Sala de Estar – Ventanas Termopanel – Terraza con Quincho – Calefacción Central – Salas de Calderas y Lavado en Subterráneo – 3 Estacionamientos


